中古マンション マンションニュー池尻 3階
■ 東急田園都市線「池尻大橋」駅 徒歩6分
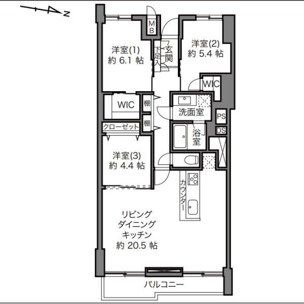
■ 専有面積82.26m²のゆとりある3LDK
■ 新規フルリノベーション(2026年5月完成予定)
■ 管理体制良好・長期修繕計画あり
価格:12,490万円
広さが、暮らしに余裕を生む。約20帖のLDKを中心に、家族それぞれの空間をしっかり確保。
都心では希少な80m²超のゆとり。
最新設備・綺麗な状態で新生活をスタート。中古でありながら“新築感覚”の一室。
“生活利便”が整った池尻エリア。スーパー・コンビニ至近。渋谷へ1駅というアクセス力も魅力。
| 所在地 | 主な交通 | 物件種別 | 築年月 | 間取り | 延床面積 |
|---|---|---|---|---|---|
| 東京都世田谷区池尻3-11-31 |
東急田園都市線「池尻大橋」駅 徒歩6分
・「池尻大橋」駅 徒歩6分 ・「駒場東大前」駅 徒歩14分 ・「三軒茶屋」駅 徒歩17分 |
マンション | 昭和51年--月 | 3LDK+W | 82.26m² |
| 物件名 | マンションニュー池尻 3階 | ||
|---|---|---|---|
| 所在地 | 東京都世田谷区池尻3-11-31 | ||
| 最寄り駅 | 東急田園都市線「池尻大橋」駅 徒歩6分 ・「池尻大橋」駅 徒歩6分 ・「駒場東大前」駅 徒歩14分 ・「三軒茶屋」駅 徒歩17分 |
||
| 価格 | 12,490万円 | 物件種別 | マンション |
| 間取り | 3LDK+W | 土地面積 | |
| 延床面積 | 82.26m² | 築年月 | 昭和51年--月 |
| 方位 | 東 | 総戸数 | 167戸 |
| 建蔽率 | 容積率 | ||
| 用途地域 | 地目 | 宅地 | |
| 土地権利 | 所有権 | 引渡 | 即可 |
| 更新日 | 26年04月06日 | 取引態様 | 媒介 |
| 設備 | ペット相談 , 楽器相談 , 2人入居可 , デザイナーズ , 即入居可 , システムキッチン , ガスコンロ , コンロ二口以上 , カウンターキッチン , バス・トイレ別 , 追い焚き , シャンプードレッサー , ウォークインクローゼット , CATV , CSアンテナ , BSアンテナ , 光ファイバー , TVドアホン , エレベーター , 室内洗濯機置場 , フローリング , 駐車場あり , バイク置き場あり , 駐輪場あり , バルコニー , 都市ガス | ||
| 備考 | 【リノベーション予定内容】 ・システムキッチン新規交換 ・ユニットバス新規交換 ・洗面化粧台新規交換 ・トイレ新規交換 ・フローリング・クロス全面張替 ・建具交換 等 |
||















